Nuevo lanzamiento en Valle Norte: vive en un condominio de solo 4 casas
Altos de Ladera inicia su preventa exclusiva: un proyecto de 22 casas distribuidas en microcondominios independientes — 5 de 4 viviendas y 1 de solo 2. Arquitectura contemporánea, privacidad y entorno natural, en una nueva forma de vivir.
Contácta con un ejecutivo
Proyecto
Altos de
ladera
Dirección
Sergio Reiss 18.110
Chicureo.
Precio
Desde UF 9.780
Dormitorios
3
Baños
3
Metraje
130
Unidades
22
Estado
Pre-venta
Altos de Ladera es un innovador proyecto inmobiliario ubicado en Valle Norte, que reinventa la experiencia de vivir en condominio. Está conformado por 22 casas distribuidas en 5 microcondominios de 4 viviendas cada uno y un exclusivo conjunto de solo 2 unidades, entregando un entorno más privado, seguro y tranquilo.
Las casas cuentan con 130 m² construidos, distribuidos en 3 dormitorios y 3 baños, con opción de ampliación para ajustarse a diferentes estilos de vida familiar. Su diseño interior privilegia los ambientes integrados y funcionales, optimizando la conexión con terrazas y áreas verdes.
Este proyecto en condominio cerrado combina arquitectura contemporánea, eficiencia en la distribución y espacios de privacidad, creando el lugar perfecto para familias que buscan un estándar superior y una nueva manera de habitar.
Actualmente en preventa exclusiva, Altos de Ladera se ubica en una zona privilegiada, con excelente conectividad a autopistas, colegios, servicios y espacios naturales.




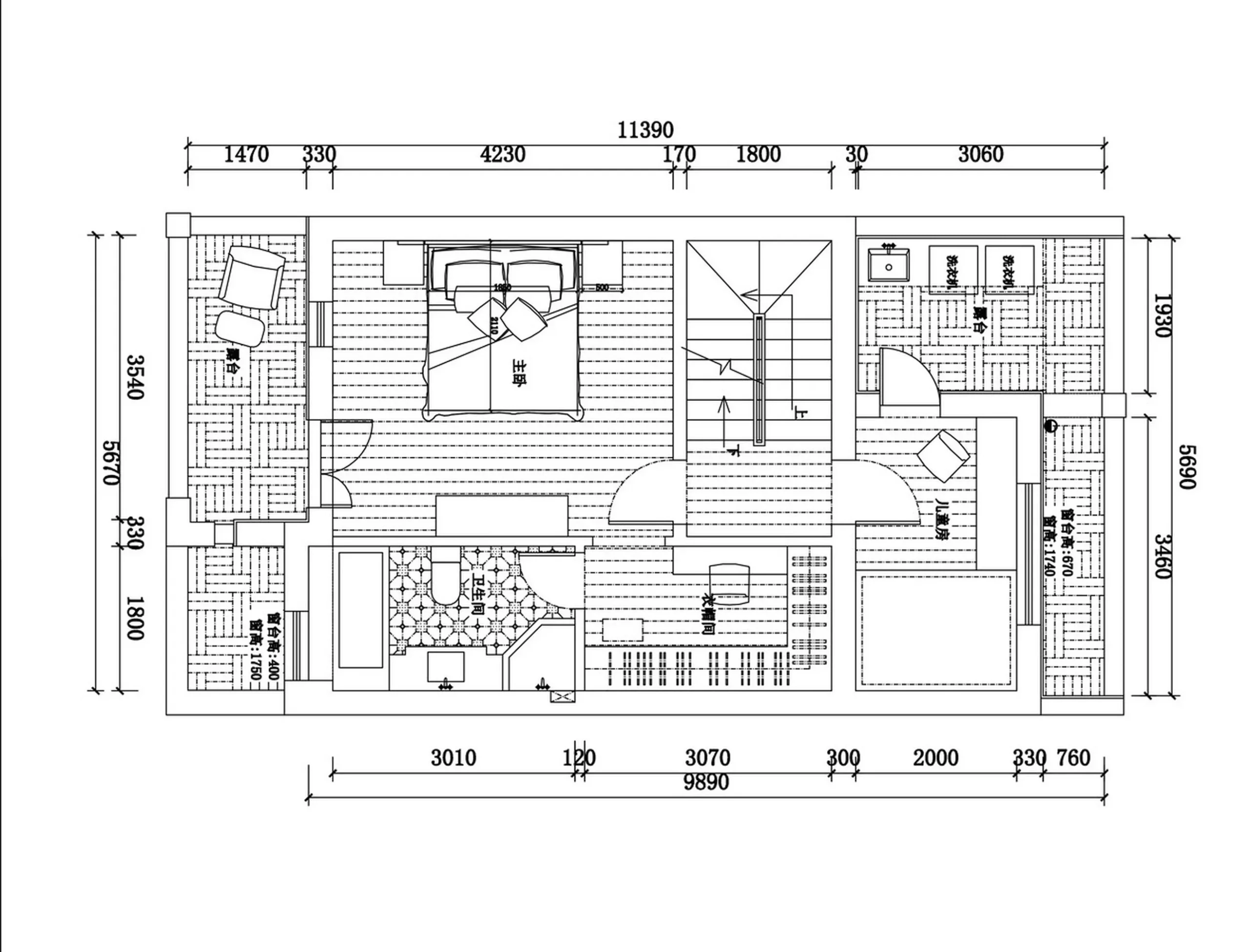
Planta tipo
Las casas de Altos del Valle destacan por su diseño moderno y eficiente.
En el primer nivel, la planta abierta conecta cocina, comedor y living, creando espacios amplios y llenos de luz natural que se integran armónicamente con la terraza y el jardín.
Además, cuentan con un patio de servicio independiente y la opción de ampliar a dormitorio y baño de visitas, pensado para familias que buscan mayor comodidad y adaptabilidad. En el segundo piso, es posible incorporar un cuarto dormitorio o sala de estar según las necesidades del hogar.
El dormitorio principal en suite incluye un amplio walking closet y baño con terminaciones de alto estándar, combinando elegancia, funcionalidad y confort en cada rincón de la vivienda.
